WAYNE FRIER HOMES OF TALLAHASSEE | EST. 1995

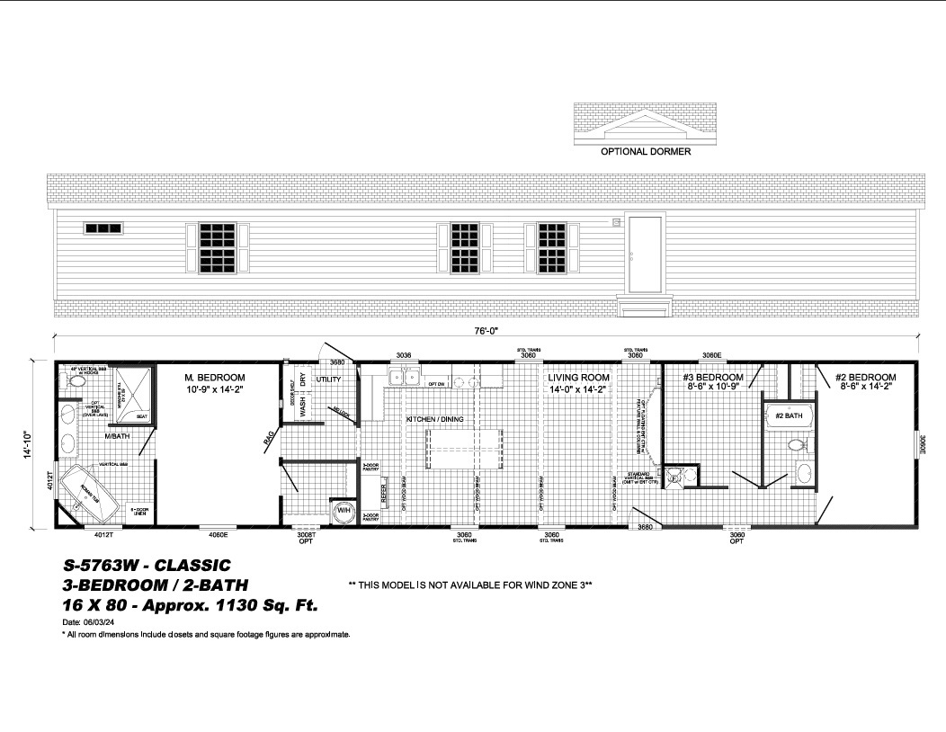
S-5763W- CLASSIC

Bedroom: 3

Bathroom: 2

Area: 16 X 80 – Approx 1130 sq. ft.

  • All room dimensions include closets and square footage figures are approximate.

.

The Slugger is a standout model in the Classic series, delivering 1,130 square feet of efficiently designed living space. As one of the most practical mobile homes for sale in Florida, this single-wide residence offers a comfortable three-bedroom layout that maximizes every inch of its 16×80 frame. It is an ideal solution for those who prefer the certainty of FL new home construction over the unpredictability of older listings found through real estate brokers in Florida. With its durable build and straightforward design, the Slugger is also a smart choice for investors looking to minimize the overhead often associated with property management services in Florida.